Ajman Creek Tower by GJ Properties
О проекте
Стартовая цена:
Конвертировать валюту:
Минимальная площадь:
331 м²Количество спален:
3Дата сдачи:
Q4/2027Ajman Creek Tower by GJ Properties — современный жилой комплекс у воды, расположенный в престижном районе Al Rashidiya в Аджмане. Проект является частью масштабной застройки Ajman Creek Towers и предлагает комфортную городскую жизнь с панорамными видами на канал и развитой инфраструктурой.


Ajman Creek Tower предлагает широкий выбор удобств, включая бассейны для взрослых и детей, современный фитнес-центр, зоны отдыха, детские игровые площадки, зелёные прогулочные пространства и розничные магазины на территории. Комплекс спроектирован с учётом потребностей семей, молодых специалистов и инвесторов.
Ajman Creek Tower by GJ Properties — это удачное сочетание доступной стоимости, прибрежного образа жизни и инвестиционной привлекательности, делающее проект отличным выбором как для собственного проживания, так и для получения стабильного дохода от аренды.

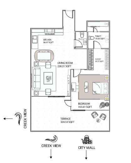
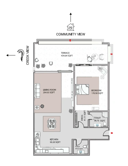
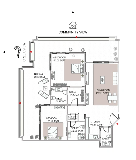
Планировки
Планировки в Ajman Creek Tower разработаны с акцентом на комфорт, функциональность и оптимальное использование пространства. Проект предлагает апартаменты с 1 и 2 спальнями, каждая из которых имеет продуманное зонирование, большие панорамные окна и светлые жилые зоны.
Рациональные решения планировок обеспечивают удобство в повседневной жизни и создают ощущение простора. Жильё подходит как для собственного проживания, так и для инвестиций, поскольку форматы квартир пользуются стабильным спросом на рынке аренды и перепродажи.
О районе

Al Rashidiya
Ajman Creek Tower расположен в районе Al Rashidiya в Аджмане, рядом с каналом Ajman Creek. Район отличается спокойной атмосферой, развитой инфраструктурой и удобным доступом к магазинам, школам, медицинским учреждениям и набережной. Хорошая транспортная доступность позволяет быстро добираться до ключевых районов Аджмана, а также до Шарджи и Дубая, что делает локацию удобной для жизни и инвестиций.
О застройщике

GJ Properties
GJ Properties является ведущим застройщиком в Ajman, основан в 2013 году. За последние десять лет компания реализовала 15 высококачественных проектов, укрепив свою репутацию как премиум разработчика роскошных жилых и коммерческих недвижимостей. Среди их знаковых проектов - The Biltmore Residences Sufouh, Gulf Tower и Rose Tower, каждый из которых символизирует инновации и устойчивость. В центре миссии GJ Properties - создание жилых пространств, предлагающих выдающееся качество жизни.

